For Autocad Experts

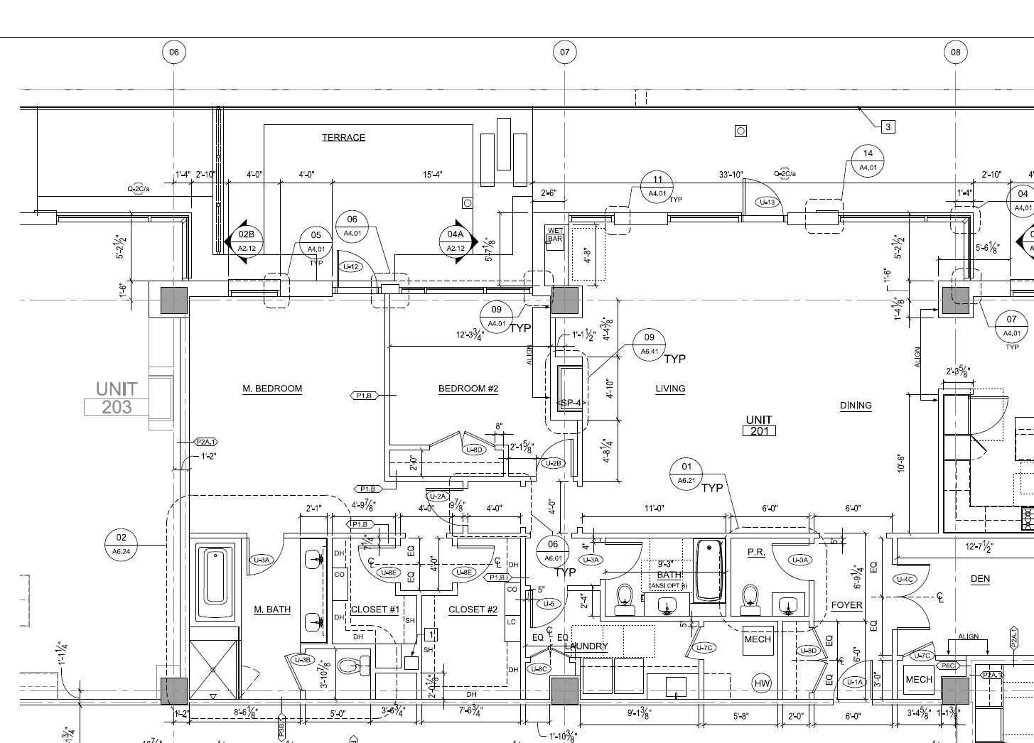
Ok, so i got this project to design construction drawings for closets and shower doors for this building.I have the pdf for the plans of the building.
I attached one of the units.

My question is, how do you usually work with these plans? Do you ask for the CAD files to be able to measure? Are the measurements on this attachement enough to get the job done? What are the standard procedures?

1 Answer

Yes it is suppose to be able for measuring of and all u need is Height, Width and thickness and then you can go