How can i change my default unit when starting new part,assembly,drawing on solidworks ? Lina AL-Faouri/CSWP/CSWP-SM 18 Oct, 2020 08:55 PM Note: changing it from document properties didn't work!!! it only changes it for once... :( Accepted answer CadCloud Answered on 20 Oct, 2020 06:13 AM Just do it like Fred say´s then make sure the Programm is loading the right template Image1.png 1 Other answer mohammad kh Answered on 19 Oct, 2020 11:04 AM tools-option-document properties-units answer.PNG
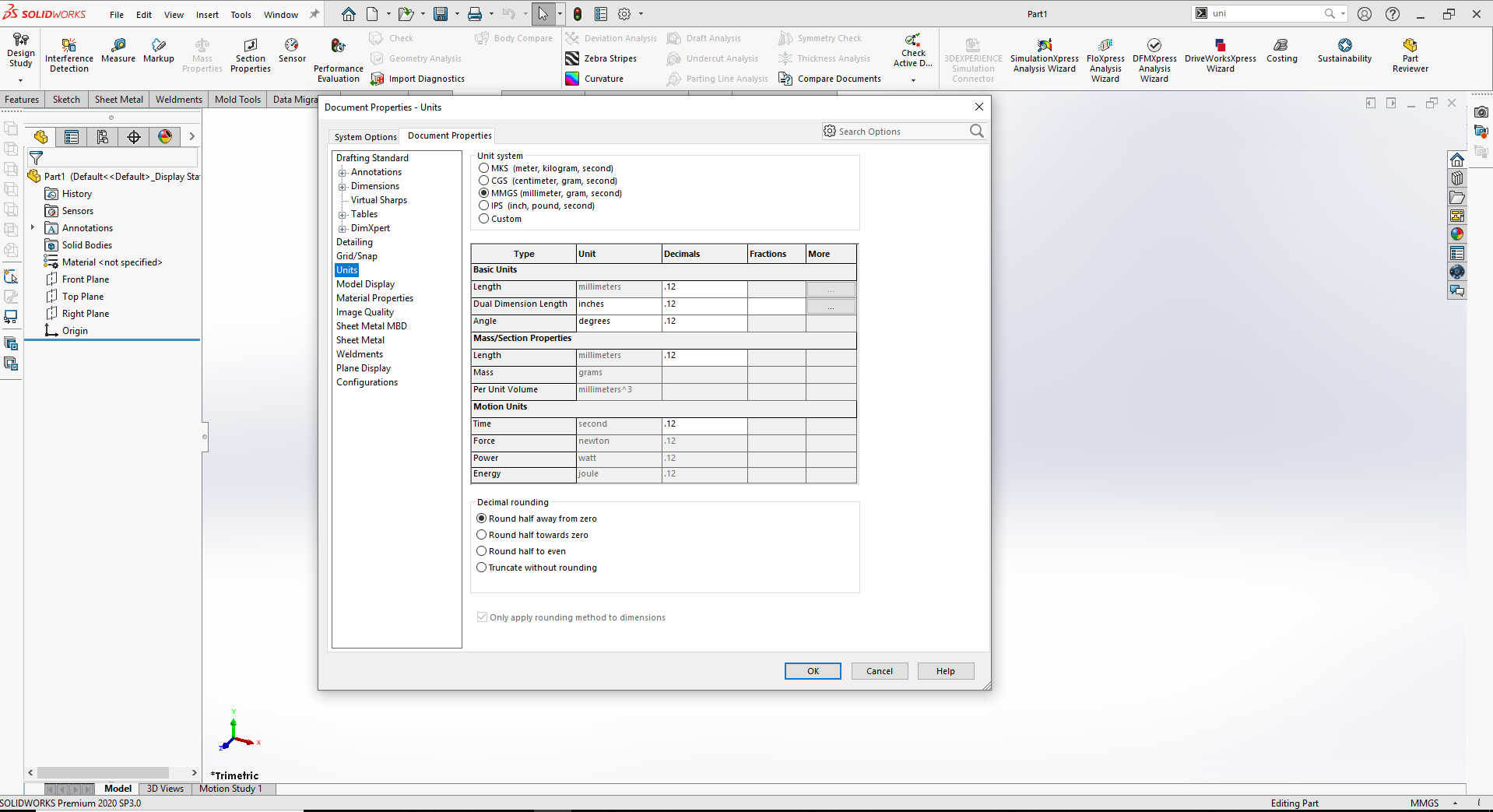
How can i change my default unit when starting new part,assembly,drawing on solidworks ? Lina AL-Faouri/CSWP/CSWP-SM 18 Oct, 2020 08:55 PM Note: changing it from document properties didn't work!!! it only changes it for once... :( Accepted answer CadCloud Answered on 20 Oct, 2020 06:13 AM Just do it like Fred say´s then make sure the Programm is loading the right template Image1.png 1 Other answer mohammad kh Answered on 19 Oct, 2020 11:04 AM tools-option-document properties-units answer.PNG