How do I model this?

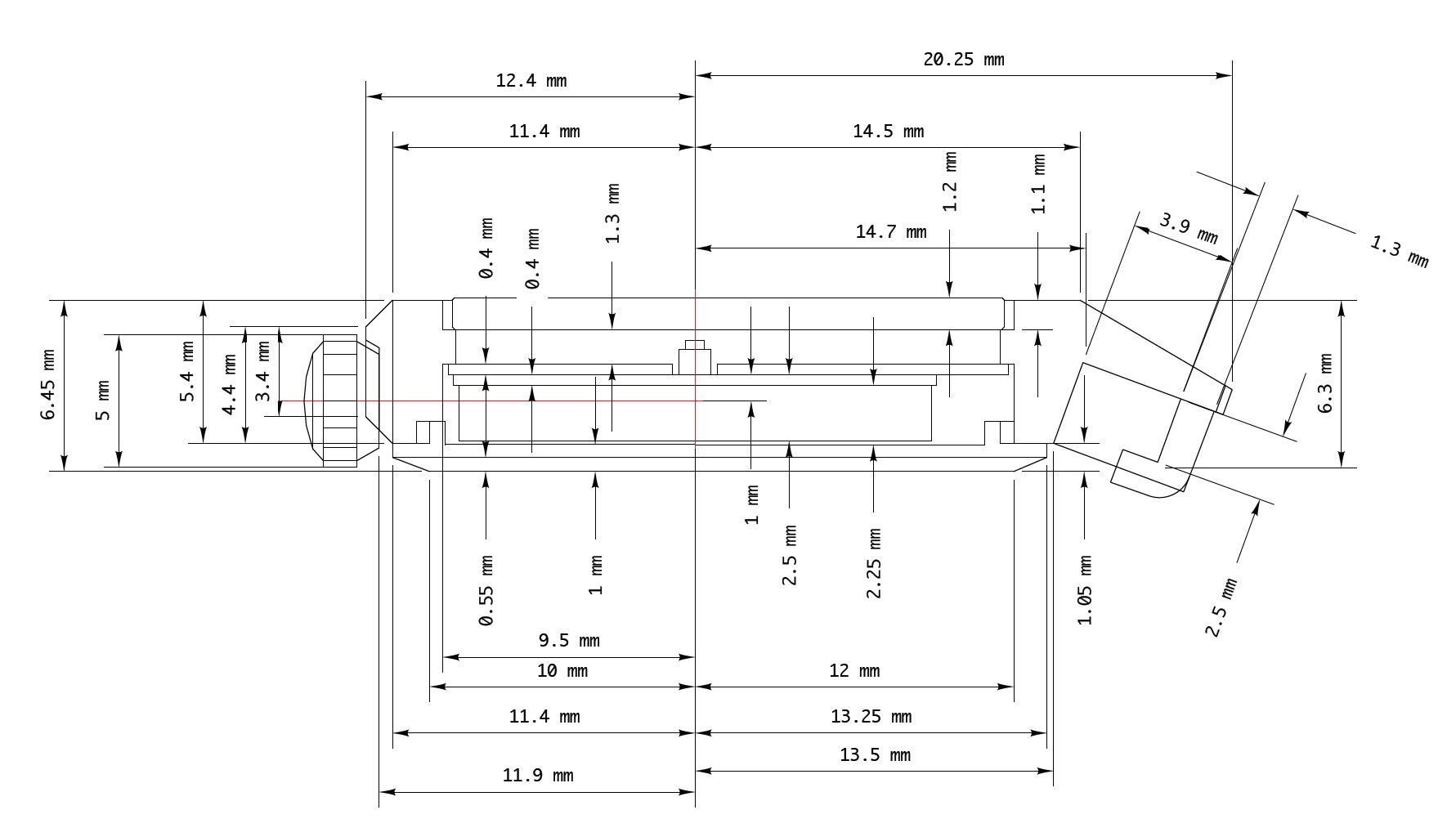
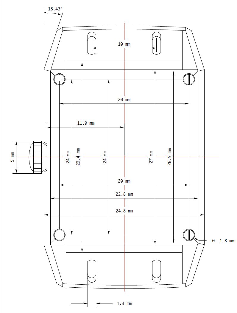
I would like to know how to proceed here, There are too many dimensions and it is confusing. I would like to know from the fellow GrabCADders if this drawing is complete or am I missing something? Especially, the section view is really confusing my mind!

Any help would be greatly appreciated. Thanks in Advance.

Drawings as attached.

3 Answers

Is there a section view?
It looks like a side view, with a front and back view of the object (a watch?).

EDIT - Actually, I now see the first image is the section view. Normally the other view(s) would show how/where the section is generated from, in this case, I would assume it is simply cut down the center.

The dimension lines are distracting.
Make a copy of the images, then "paint away" all the dimensions and leader lines in a graphics program. You'll then have a clean set to draw your sketches from, and a separate set with all the needed dimensions.

When I work from a drawing, I'll cross out, highlight, or otherwise mark each dimension as I use it in SolidWorks. When you get to the end, and all the dimensions are marked, it is not a guarantee of success, but at least it shows that you should be quite close.

I presume you have figured out now, that the section view has a 90 degree angle, so that it shows two different half sections, corresponding to the attached (top) view.

It looks like all dimensions are present.

I have modelled the watch case and uploaded the model in SW 2014:
Request: Watch case
Most dimensions were there, but a few qualified guesses were necessary.
Cheers,
Steen