How to do this

1 Answer

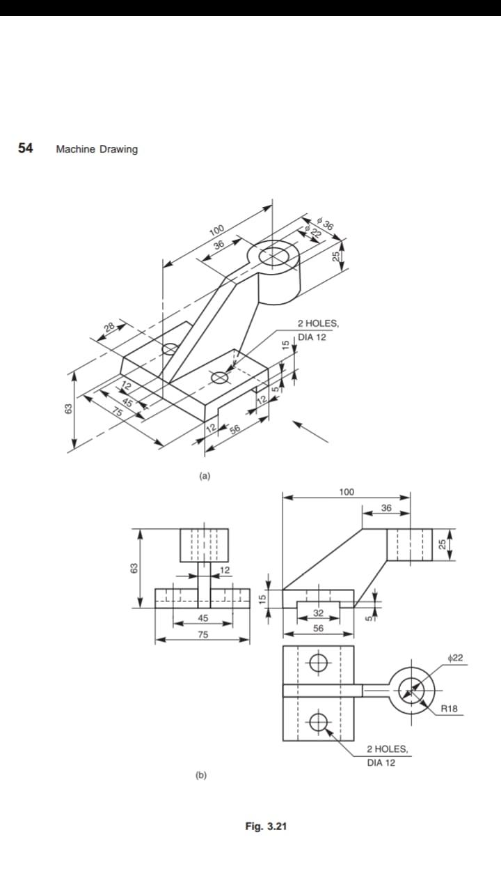
Take advantage of the symmetry of the problem.

Start by extruding the base profile in one direction then punching the hole through it, then I'd move on to the half-hollow cylinder and link both with half the central slope.

Finally use the symmetry tool with respect to whatever plane you've been using for the sketches.